03-1504
Status
Till salu
Pris
2 250 000
Avgift
3 516
Antal rum
2
Boyta
45
Våning
6
Boendeform
Bostadsrättslägenhet
Uppskattad driftskostnad
424
Inflytt
Sommar 2027
Se utsikt
03-1504
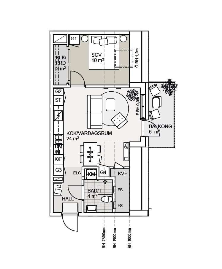
Här erbjuds en genomtänkt bostad högst upp i huset, där varje kvadratmeter är smart utnyttjad för att skapa en funktionell och trivsam miljö. Den öppna planlösningen i kombination med takfönster ger en luftig och inbjudande känsla. Från balkongen, som vetter mot den lugna innergården, kan ni njuta av rofyllda stunder och utsikt över grönskan. Bostaden har dessutom dubbla förrådsutrymmen, vilket ger gott om förvaringsmöjligheter och gör det enkelt att hålla ordning och reda. Detta är en bostad som visar att 45 kvm kan vara rymligt och smart!
När du köper en lägenhet i Platån får du dessutom kostnadsfritt välja mellan tre inredningsstilar. Varje stil innehåller en komplett inredning och de är framtagna av Nordrs inredningsarkitekter. Läs mer om inredningsstilarna Sunnan, Nordan och Mistral genom att klicka dig vidare till projektsidan.
När du köper en lägenhet i Platån får du dessutom kostnadsfritt välja mellan tre inredningsstilar. Varje stil innehåller en komplett inredning och de är framtagna av Nordrs inredningsarkitekter. Läs mer om inredningsstilarna Sunnan, Nordan och Mistral genom att klicka dig vidare till projektsidan.
Se fasaden
Sunnan, Nordan eller Mistral?
Du väljer stil och tillhörande Egna val.
Dokument
Visning och kontakt
På visning får du möjlighet att ställa alla dina frågor och funderingar och vi tittar i bostadsväljaren för att hitta en lägenhet som passar dina behov och önskemål. Om det inte finns någon tid publicerad eller om just den tiden inte passar dig är du varmt välkommen att boka ett privat möte.
Nästa visning:
Datum: 20 maj
Tid: 16-17
Plats: Visningsbod i Säteriet.
Kontakta mäklarna för att boka in dig!
Poya Sondosi
Mäklare Nya Kvadrat
Gustav Johansson
Mäklare Nya Kvadrat
