03-1401
Status
Till salu
Pris
2 495 000
Avgift
4 012
Antal rum
2,5
Boyta
55
Våning
5
Boendeform
Bostadsrättslägenhet
Uppskattad driftskostnad
518
Inflytt
Sommar 2027
Se utsikt
03-1401
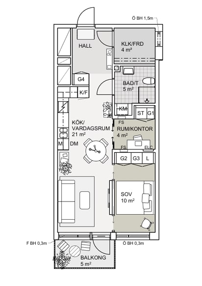
Hitta hem i denna smarta lägenhet som erbjuder både flexibilitet och komfort. Sovrummet är utrustat med skjutdörrar, vilket ger dig möjlighet att anpassa rummets funktion utan att minsta yta krävs för dörrblad. Det unika hybrida rummet är ett förråd bakom glasväggar som enkelt kan anpassas efter dina behov perfekt som kontor eller t.ex. hobbyrum. Kök i vinkel skapar en avgränsning mot hallen som erbjuder gedigen förvaring i ett stort förråd. Lägenheten har en härlig balkong i söderläge, idealisk för att njuta av soliga dagar.
När du köper en lägenhet i Platån får du dessutom kostnadsfritt välja mellan tre inredningsstilar. Varje stil innehåller en komplett inredning och de är framtagna av Nordrs inredningsarkitekter. Läs mer om inredningsstilarna Sunnan, Nordan och Mistral genom att klicka dig vidare till projektsidan.
När du köper en lägenhet i Platån får du dessutom kostnadsfritt välja mellan tre inredningsstilar. Varje stil innehåller en komplett inredning och de är framtagna av Nordrs inredningsarkitekter. Läs mer om inredningsstilarna Sunnan, Nordan och Mistral genom att klicka dig vidare till projektsidan.
Se fasaden
Sunnan, Nordan eller Mistral?
Du väljer stil och tillhörande Egna val.
Dokument
Visning och kontakt
Visningen sker i vår nya visningsbod i Säteriet - Kontakta mäklaren för plats
tisdag, 17 februari 16:30 - 17:30
Poya Sondosi
Mäklare Nya Kvadrat
Gustav Johansson
Mäklare Nya Kvadrat
