03-1201
Status
Till salu
Pris
3 295 000
Avgift
4 756
Antal rum
3
Boyta
71
Våning
3
Boendeform
Bostadsrättslägenhet
Uppskattad driftskostnad
668
Inflytt
Sommar 2027
Se utsikt
03-1201
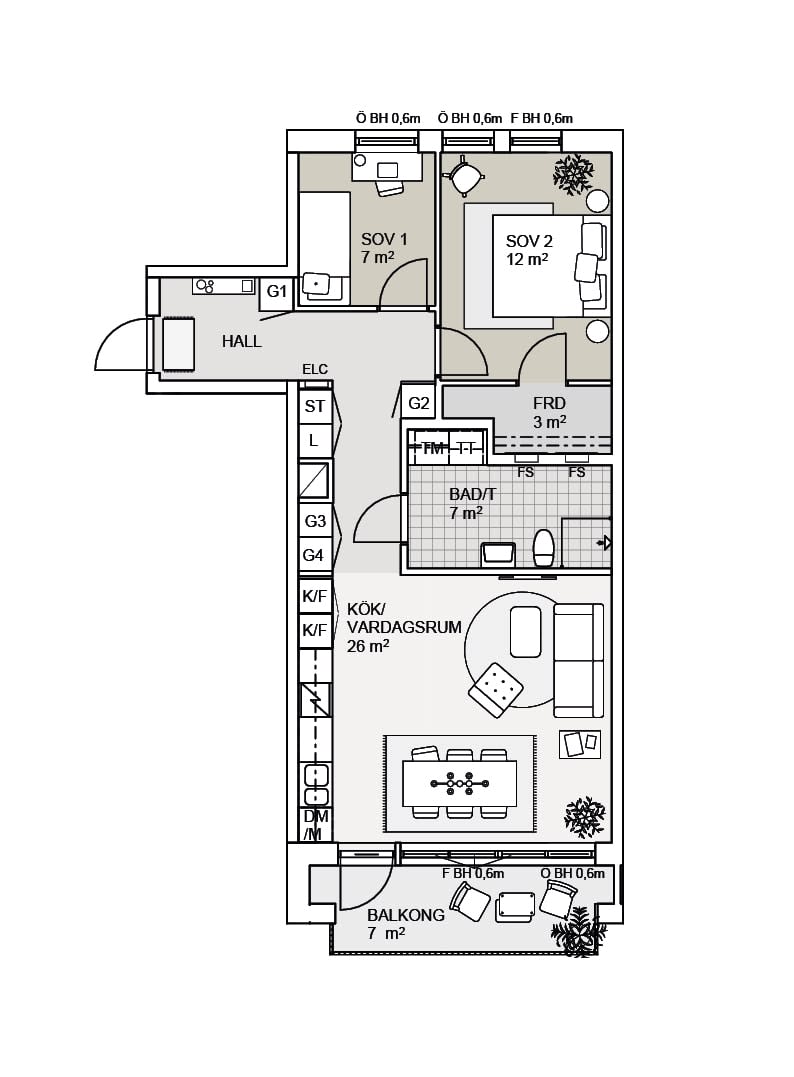
Denna välplanerade lägenhet erbjuder en ljus och luftig atmosfär med en öppen planlösning som vetter mot ett stort fönsterparti i söder. Från vardagsrummet når du en solig balkong som bjuder in till avkoppling utomhus. Lägenheten har ett rymligt badrum och en vinkelformad hall som knyter samman samtliga sovrum. Master bedroom är en privat oas med egen uteplats och klädkammare, vilket ger extra komfort och förvaring.
När du köper en lägenhet i Platån får du dessutom kostnadsfritt välja mellan tre inredningsstilar. Varje stil innehåller en komplett inredning och de är framtagna av Nordrs inredningsarkitekter. Läs mer om inredningsstilarna Sunnan, Nordan och Mistral genom att klicka dig vidare till projektsidan.
När du köper en lägenhet i Platån får du dessutom kostnadsfritt välja mellan tre inredningsstilar. Varje stil innehåller en komplett inredning och de är framtagna av Nordrs inredningsarkitekter. Läs mer om inredningsstilarna Sunnan, Nordan och Mistral genom att klicka dig vidare till projektsidan.
Se fasaden
Sunnan, Nordan eller Mistral?
Du väljer stil och tillhörande Egna val.
Dokument
Visning och kontakt
På visning får du möjlighet att ställa alla dina frågor och funderingar och vi tittar i bostadsväljaren för att hitta en lägenhet som passar dina behov och önskemål. Om det inte finns någon tid publicerad eller om just den tiden inte passar dig är du varmt välkommen att boka ett privat möte.
Nästa visning:
Datum: 20 maj
Tid: 16-17
Plats: Visningsbod i Säteriet.
Kontakta mäklarna för att boka in dig!
Poya Sondosi
Mäklare Nya Kvadrat
Gustav Johansson
Mäklare Nya Kvadrat
