3-1305
Status
Reserverad
Pris
Avgift
5 200
Antal rum
4
Boyta
93
Våning
3
Boendeform
Bostadsrättslägenhet
Uppskattad driftskostnad
943
Inflytt
Kvartal 4, 2028
3-1305
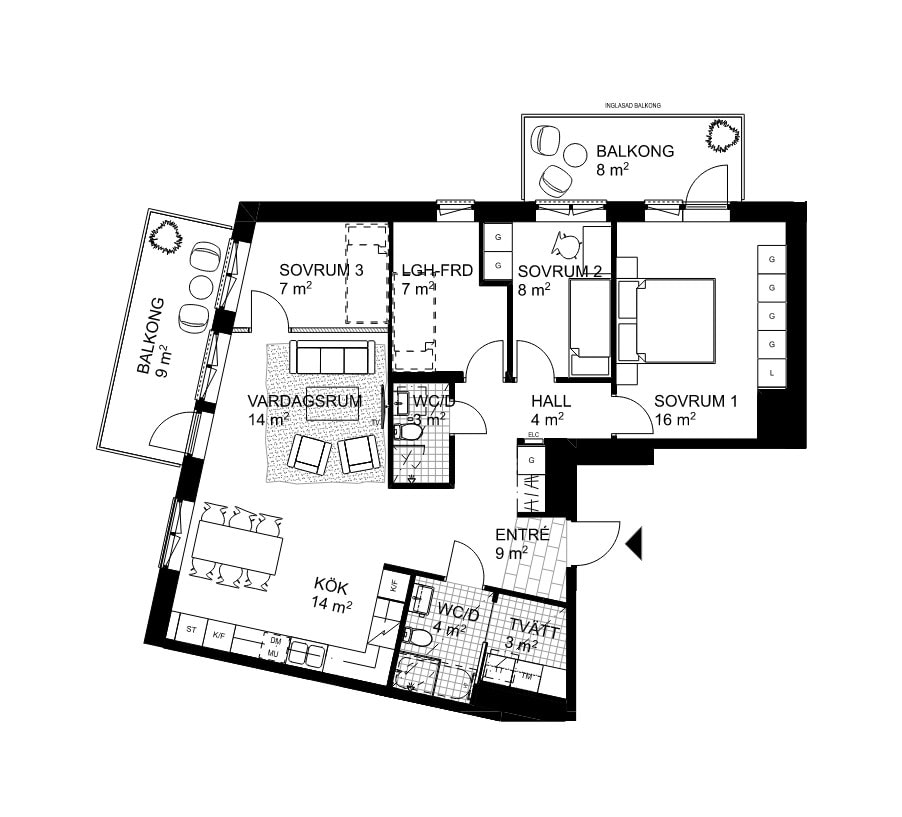
Välkommen till ett hem som är skapat för att kunna växa i med plats för förändring, vardag och framtid. Detta är en av våra familjelägenheter och är en välplanerad fyra med hörnläge och dubbla balkonger. Med sina 93 kvm är bostaden fylld med smarta lösningar, rymliga ytor och flexibilitet som gör skillnad i vardagen.
Via en tillvalsvägg kan du enkelt anpassa planlösningen efter livets skeden och utökning av familjen från en social fyra till en yteffektiv femma. Här finns en tydlig uppdelning mellan de gemensamma ytorna och de privata rummen, vilket skapar lugn, struktur och funktionalitet i vardagen.
Bostaden har två helkaklade badrum och en separat tvättstuga som underlättar vardagen. Det öppna köket och vardagsrummet bjuder in till både vardagsliv och helgmys, med plats för trevliga middagar. Från vardagsrummet nås en av bostadens två balkonger som vetter mot Bällstavägen. Tre bra sovrum vetter mot en lugn tvärgata, varav master bedroom har utgång till bostadens andra balkong. Balkongerna är generösa och har gott om plats för utemöbler.
Här bor du i ett växande område där Bromma möter Sundbyberg och det bästa av två världar förenas, med naturens lugn och stadens bekvämligheter. Nära till Bällstaviken, lummiga parker, skolor, förskolor och utmärkta kommunikationer. I närheten finns även butiker, restauranger och service.
När du köper en lägenhet i Bromma Canvas får du kostnadsfritt välja mellan tre inredningsstilar. På Nordr vet vi hur viktigt det är med en genomtänkt bas för att sen få den personliga touchen på plats. Därför får du alltid tre genomarbetade inredningsstilar att välja mellan när du köper ett nytt hem av oss. Det är som att anlita en inredningsarkitekt, men vi har gjort jobbet åt dig.
Läs mer om inredningsstilarna Nordan, Sunnan och Mistral genom att klicka dig vidare till projektsidan.
Via en tillvalsvägg kan du enkelt anpassa planlösningen efter livets skeden och utökning av familjen från en social fyra till en yteffektiv femma. Här finns en tydlig uppdelning mellan de gemensamma ytorna och de privata rummen, vilket skapar lugn, struktur och funktionalitet i vardagen.
Bostaden har två helkaklade badrum och en separat tvättstuga som underlättar vardagen. Det öppna köket och vardagsrummet bjuder in till både vardagsliv och helgmys, med plats för trevliga middagar. Från vardagsrummet nås en av bostadens två balkonger som vetter mot Bällstavägen. Tre bra sovrum vetter mot en lugn tvärgata, varav master bedroom har utgång till bostadens andra balkong. Balkongerna är generösa och har gott om plats för utemöbler.
Här bor du i ett växande område där Bromma möter Sundbyberg och det bästa av två världar förenas, med naturens lugn och stadens bekvämligheter. Nära till Bällstaviken, lummiga parker, skolor, förskolor och utmärkta kommunikationer. I närheten finns även butiker, restauranger och service.
När du köper en lägenhet i Bromma Canvas får du kostnadsfritt välja mellan tre inredningsstilar. På Nordr vet vi hur viktigt det är med en genomtänkt bas för att sen få den personliga touchen på plats. Därför får du alltid tre genomarbetade inredningsstilar att välja mellan när du köper ett nytt hem av oss. Det är som att anlita en inredningsarkitekt, men vi har gjort jobbet åt dig.
Läs mer om inredningsstilarna Nordan, Sunnan och Mistral genom att klicka dig vidare till projektsidan.
Sunnan, Nordan eller Mistral?
Du väljer stil och tillhörande Egna val.
Dokument
Visning och kontakt
På visning får du möjlighet att ställa alla dina frågor och funderingar och vi tittar i bostadsväljaren för att hitta en lägenhet som passar dina behov och önskemål. Om det inte finns någon tid publicerad eller om just den tiden inte passar dig är du varmt välkommen att boka ett privat möte.
Nästa visning
Datum: onsdag 3 juni
Tid: 18:00 - 18:30
Plats: Välkommen till Widerlövs kontor på Ängby Torg 6
Marike Dukic
Mäklare, Widerlöv
Isabella Lindell
Mäklare, Widerlöv
