3-1304
Status
Till salu
Pris
3 645 000
Avgift
3 628
Antal rum
2
Boyta
50
Våning
3
Boendeform
Bostadsrättslägenhet
Uppskattad driftskostnad
508
Inflytt
Kvartal 4, 2028
3-1304
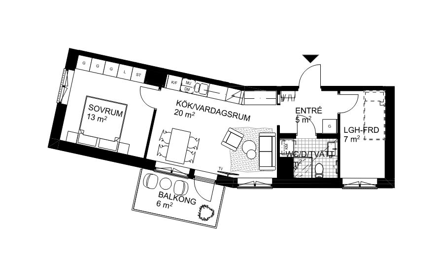
Välkommen till denna smart planerade tvårummare om 50 kvm med balkong. Bostaden kan utnyttjas som en trerummare om man önskar då förrådet i bostaden är hela 7 kvm med fönster vilket enkelt kan nyttjas som hemmakontor eller ett extra sovrum. Det här är en bostad där varje kvadratmeter används på bästa sätt perfekt för dig som vill ha ett funktionellt och trivsamt hem.
Bostaden erbjuder en öppen planlösning mellan kök och vardagsrum om 20 kvm, som skapar en ljus och social yta för både matlagning, vardagsmåltider och umgänge. Rummet rymmer enkelt både matbord och soffgrupp och har utgång till den egna uteplatsen.
Sovrummet är rymligt och har plats för dubbelsäng, sängbord och gott om förvaring i en hel garderobsvägg.
Badrummet är helkaklat och utrustat med dusch, handfat, WC samt kombinerad tvättmaskin och torktumlare, vilket förenklar vardagen.
När du köper en lägenhet i Bromma Canvas får du kostnadsfritt välja mellan tre inredningsstilar. På Nordr vet vi hur viktigt det är med en genomtänkt bas för att sen få den personliga touchen på plats. Därför får du alltid tre genomarbetade inredningsstilar att välja mellan när du köper ett nytt hem av oss. Det är som att anlita en inredningsarkitekt, men vi har gjort jobbet åt dig.
Läs mer om inredningsstilarna Nordan, Sunnan och Mistral genom att klicka dig vidare till projektsidan.
Bostaden erbjuder en öppen planlösning mellan kök och vardagsrum om 20 kvm, som skapar en ljus och social yta för både matlagning, vardagsmåltider och umgänge. Rummet rymmer enkelt både matbord och soffgrupp och har utgång till den egna uteplatsen.
Sovrummet är rymligt och har plats för dubbelsäng, sängbord och gott om förvaring i en hel garderobsvägg.
Badrummet är helkaklat och utrustat med dusch, handfat, WC samt kombinerad tvättmaskin och torktumlare, vilket förenklar vardagen.
När du köper en lägenhet i Bromma Canvas får du kostnadsfritt välja mellan tre inredningsstilar. På Nordr vet vi hur viktigt det är med en genomtänkt bas för att sen få den personliga touchen på plats. Därför får du alltid tre genomarbetade inredningsstilar att välja mellan när du köper ett nytt hem av oss. Det är som att anlita en inredningsarkitekt, men vi har gjort jobbet åt dig.
Läs mer om inredningsstilarna Nordan, Sunnan och Mistral genom att klicka dig vidare till projektsidan.
Sunnan, Nordan eller Mistral?
Du väljer stil och tillhörande Egna val.
Dokument
Visning och kontakt
På visning får du möjlighet att ställa alla dina frågor och funderingar och vi tittar i bostadsväljaren för att hitta en lägenhet som passar dina behov och önskemål. Om det inte finns någon tid publicerad eller om just den tiden inte passar dig är du varmt välkommen att boka ett privat möte.
Nästa visning
Datum: onsdag 3 juni
Tid: 18:00 - 18:30
Plats: Välkommen till Widerlövs kontor på Ängby Torg 6
Marike Dukic
Mäklare, Widerlöv
Isabella Lindell
Mäklare, Widerlöv
