2-1105
Status
Till salu
Pris
6 895 000
Avgift
5 563
Antal rum
5
Boyta
104
Våning
2
Boendeform
Bostadsrättslägenhet
Uppskattad driftskostnad
1 056
Inflytt
Kvartal 4, 2028
2-1105
Försäljningen startar 4 december! Anmäl intresse för all information och för att kunna ta del av vårt säljstartserbjudande. Köp din bostad i samband med säljstarten och få 75 000 kr i rabatt per rum. Gäller endast för de 25 första bostäderna.
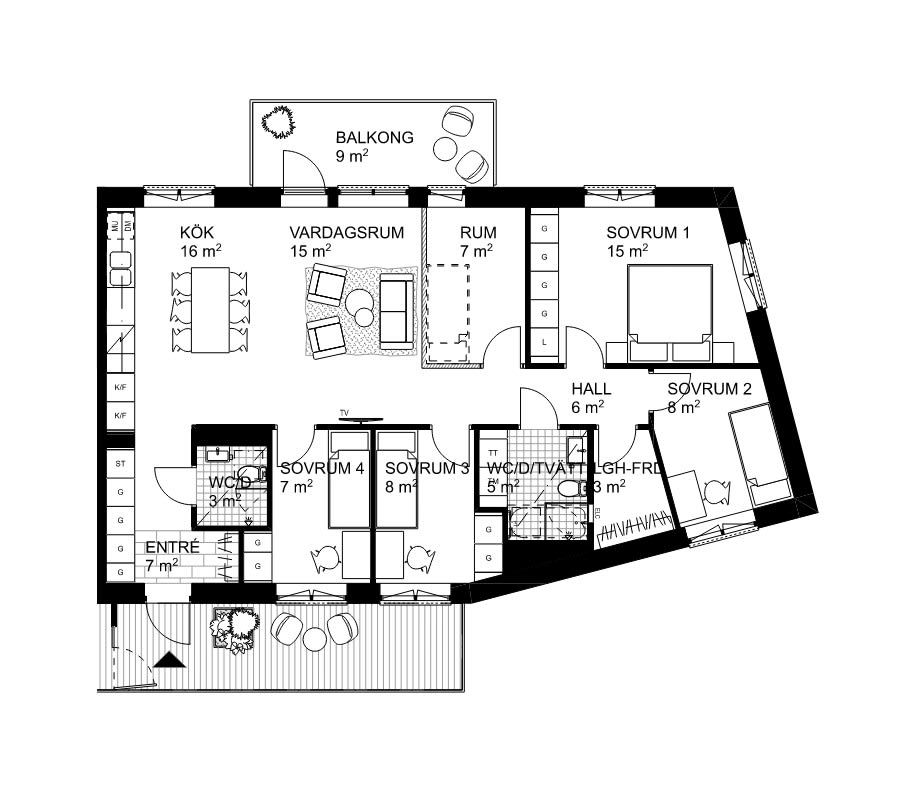
Välkommen till ett hem där varje kvadratmeter är väl genomtänkt för att skapa en trivsam och funktionell livsmiljö. Med sina 104 kvm, fem rum och kök erbjuder denna stilrena bostad generösa ytor. Bostaden har ett fint och ljust gavelläge samt en rymlig balkong som vetter mot Bällstavägen. Bostaden nås via entrébalkong som vetter mot föreningens innergård, där du har egen grind in till uteplatsen där man får plats med sittmöbler, odling eller cyklar.
Redan i hallen möts du av en välkomnande känsla med goda förvaringsmöjligheter och en planlösning som öppnar upp mot bostadens sociala ytor. Vardagsrummet är ljust och luftigt med plats för både soffgrupp och matsalsmöbel, ett rum som bjuder in till både avkoppling och livskvalitet.
Köket är fullt utrustat med gott om arbetsyta, vilket gör det både praktiskt och inspirerande att laga mat, oavsett om det handlar om vardagsmiddag eller middagsbjudning. Från vardagsrummet når du även bostadens generösa balkong.
De fyra sovrummen är fördelade på ett sätt som ger flexibilitet för barnrum, hemmakontor, gästrum eller varför inte en walk-in-closet. Möjligheterna är många. Det största sovrummet är väl tilltaget om 14 kvm och beläget med ett ljust hörnläge. Sovrummet har plats för dubbelsäng och har bra förvaring via en hel garderobsvägg. Två helkaklade badrum, varav ett med tvättmaskin och torktumlare gör vardagen extra smidig.
Här bor du i ett växande område där Bromma möter Sundbyberg och det bästa av två världar förenas, med naturens lugn och stadens bekvämligheter. Nära till Bällstaviken, lummiga parker, skolor, förskolor och utmärkta kommunikationer. I närheten finns även butiker, restauranger och service.
När du köper en lägenhet i Bromma Canvas får du kostnadsfritt välja mellan tre inredningsstilar. På Nordr vet vi hur viktigt det är med en genomtänkt bas för att sen få den personliga touchen på plats. Därför får du alltid tre genomarbetade inredningsstilar att välja mellan när du köper ett nytt hem av oss. Det är som att anlita en inredningsarkitekt, men vi har gjort jobbet åt dig.
Läs mer om inredningsstilarna Nordan, Sunnan och Mistral genom att klicka dig vidare till projektsidan.
Välkommen till ett hem där varje kvadratmeter är väl genomtänkt för att skapa en trivsam och funktionell livsmiljö. Med sina 104 kvm, fem rum och kök erbjuder denna stilrena bostad generösa ytor. Bostaden har ett fint och ljust gavelläge samt en rymlig balkong som vetter mot Bällstavägen. Bostaden nås via entrébalkong som vetter mot föreningens innergård, där du har egen grind in till uteplatsen där man får plats med sittmöbler, odling eller cyklar.
Redan i hallen möts du av en välkomnande känsla med goda förvaringsmöjligheter och en planlösning som öppnar upp mot bostadens sociala ytor. Vardagsrummet är ljust och luftigt med plats för både soffgrupp och matsalsmöbel, ett rum som bjuder in till både avkoppling och livskvalitet.
Köket är fullt utrustat med gott om arbetsyta, vilket gör det både praktiskt och inspirerande att laga mat, oavsett om det handlar om vardagsmiddag eller middagsbjudning. Från vardagsrummet når du även bostadens generösa balkong.
De fyra sovrummen är fördelade på ett sätt som ger flexibilitet för barnrum, hemmakontor, gästrum eller varför inte en walk-in-closet. Möjligheterna är många. Det största sovrummet är väl tilltaget om 14 kvm och beläget med ett ljust hörnläge. Sovrummet har plats för dubbelsäng och har bra förvaring via en hel garderobsvägg. Två helkaklade badrum, varav ett med tvättmaskin och torktumlare gör vardagen extra smidig.
Här bor du i ett växande område där Bromma möter Sundbyberg och det bästa av två världar förenas, med naturens lugn och stadens bekvämligheter. Nära till Bällstaviken, lummiga parker, skolor, förskolor och utmärkta kommunikationer. I närheten finns även butiker, restauranger och service.
När du köper en lägenhet i Bromma Canvas får du kostnadsfritt välja mellan tre inredningsstilar. På Nordr vet vi hur viktigt det är med en genomtänkt bas för att sen få den personliga touchen på plats. Därför får du alltid tre genomarbetade inredningsstilar att välja mellan när du köper ett nytt hem av oss. Det är som att anlita en inredningsarkitekt, men vi har gjort jobbet åt dig.
Läs mer om inredningsstilarna Nordan, Sunnan och Mistral genom att klicka dig vidare till projektsidan.
Sunnan, Nordan eller Mistral?
Du väljer stil och tillhörande Egna val.
Dokument
Visning och kontakt
Marike Dukic
Mäklare, Widerlöv
Isabella Lindell
Mäklare, Widerlöv
