1-1301
Status
Till salu
Pris
3 795 000
Avgift
3 688
Antal rum
2
Boyta
52
Våning
3
Boendeform
Bostadsrättslägenhet
Uppskattad driftskostnad
528
Inflytt
Kvartal 4, 2028
1-1301
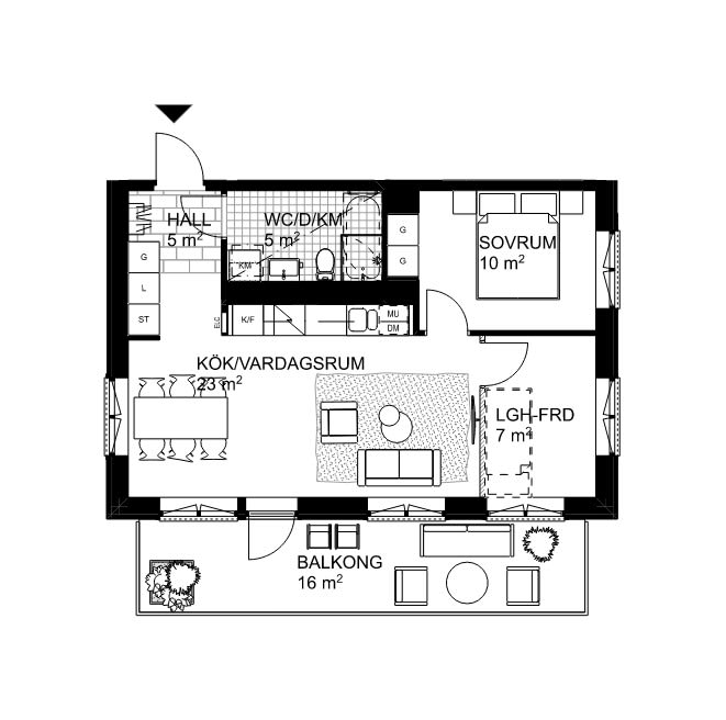
Välkommen till denna trivsamma tvårummare med ljust gavelläge och en fantastisk balkong i soligt söderläge. Den öppna utformningen mellan kök och vardagsrum skapar en naturlig plats för umgänge, middagar och vardagsliv. Här finns gott om utrymme för både större matbord och soffhörna, och de stora fönsterpartierna som vetter mot bostadens terrass släpper in fint dagsljus från flera väderstreck.
Köket är modernt utformat med gott om arbetsyta, förvaring och maskinell utrustning i stilren design.
Sovrummet erbjuder en lugn och avskild plats med gott om plats för dubbelsäng och garderober.
Det helkaklade badrummet är stilrent inrett med dusch, handfat, WC samt kombinerad tvättmaskin och torktumlare en bekväm och modern lösning som förenklar vardagen.
Bostadens stora fördelar är den fantastiska terrassen i soligt söderläge och det flexibla extrautrymmet. Här finns möjlighet att välja att ha en vägg och skapa ett separat rum perfekt som hemmakontor, barnrum eller förråd. Föredrar du i stället en mer öppen och luftig känsla kan du låta ytan vara en del av vardagsrummet och njuta av den generösa planlösningen.
Ett modernt hem med valfrihet, ljus och funktion perfekt för dig som söker ett boende med det lilla extra samt att växa i, anpassa efter behov och trivas i varje dag.
När du köper en lägenhet i Bromma Canvas får du kostnadsfritt välja mellan tre inredningsstilar. På Nordr vet vi hur viktigt det är med en genomtänkt bas för att sen få den personliga touchen på plats. Därför får du alltid tre genomarbetade inredningsstilar att välja mellan när du köper ett nytt hem av oss. Det är som att anlita en inredningsarkitekt, men vi har gjort jobbet åt dig. Läs mer om inredningsstilarna Nordan, Sunnan och Mistral genom att klicka dig vidare till projektsidan.
Köket är modernt utformat med gott om arbetsyta, förvaring och maskinell utrustning i stilren design.
Sovrummet erbjuder en lugn och avskild plats med gott om plats för dubbelsäng och garderober.
Det helkaklade badrummet är stilrent inrett med dusch, handfat, WC samt kombinerad tvättmaskin och torktumlare en bekväm och modern lösning som förenklar vardagen.
Bostadens stora fördelar är den fantastiska terrassen i soligt söderläge och det flexibla extrautrymmet. Här finns möjlighet att välja att ha en vägg och skapa ett separat rum perfekt som hemmakontor, barnrum eller förråd. Föredrar du i stället en mer öppen och luftig känsla kan du låta ytan vara en del av vardagsrummet och njuta av den generösa planlösningen.
Ett modernt hem med valfrihet, ljus och funktion perfekt för dig som söker ett boende med det lilla extra samt att växa i, anpassa efter behov och trivas i varje dag.
När du köper en lägenhet i Bromma Canvas får du kostnadsfritt välja mellan tre inredningsstilar. På Nordr vet vi hur viktigt det är med en genomtänkt bas för att sen få den personliga touchen på plats. Därför får du alltid tre genomarbetade inredningsstilar att välja mellan när du köper ett nytt hem av oss. Det är som att anlita en inredningsarkitekt, men vi har gjort jobbet åt dig. Läs mer om inredningsstilarna Nordan, Sunnan och Mistral genom att klicka dig vidare till projektsidan.
Sunnan, Nordan eller Mistral?
Du väljer stil och tillhörande Egna val.
Dokument
Visning och kontakt
På visning får du möjlighet att ställa alla dina frågor och funderingar och vi tittar i bostadsväljaren för att hitta en lägenhet som passar dina behov och önskemål. Om det inte finns någon tid publicerad eller om just den tiden inte passar dig är du varmt välkommen att boka ett privat möte.
Nästa visning
Datum: onsdag 3 juni
Tid: 18:00 - 18:30
Plats: Välkommen till Widerlövs kontor på Ängby Torg 6
Marike Dukic
Mäklare, Widerlöv
Isabella Lindell
Mäklare, Widerlöv
