6-1201
Status
Till salu
Pris
4 195 000
Avgift
5 551
Antal rum
4
Boyta
86
Våning
3
Boendeform
Bostadsrättslägenhet
Uppskattad driftskostnad
808
Inflytt
Från våren 2027
6-1201
23 september släpps de sista lägenheterna till salu.
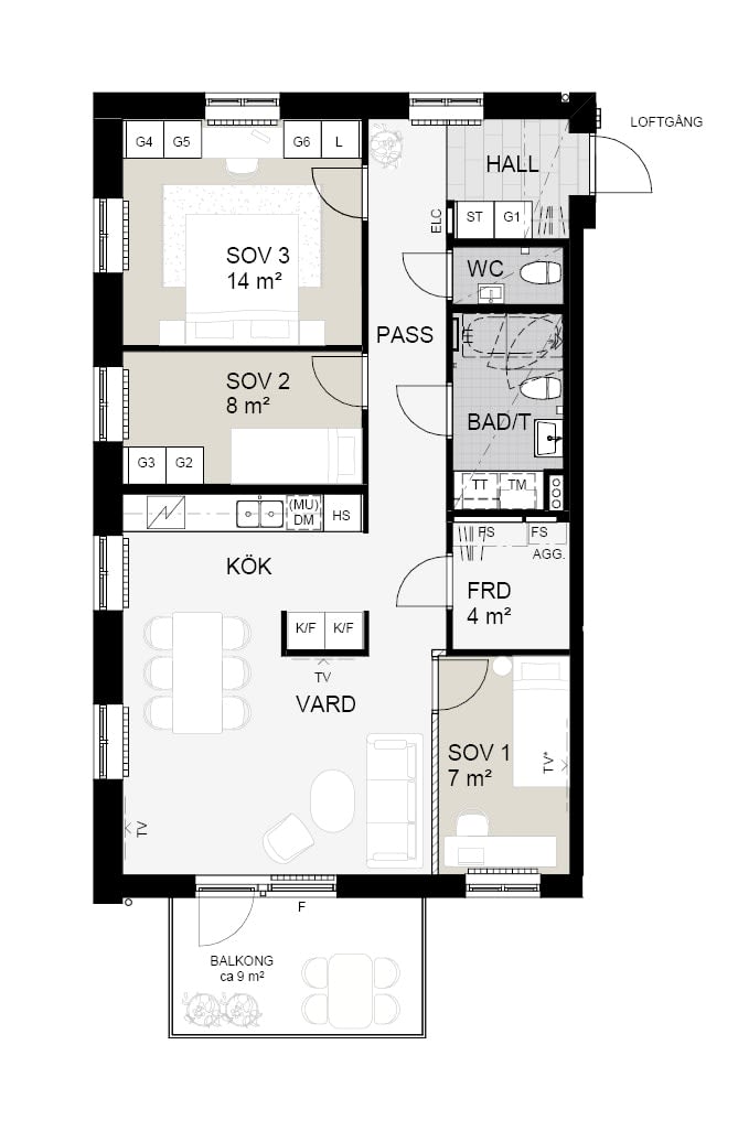
Fin fyrarummare på gavel med härlig balkong i söder, fönster i tre väderstreck och öppen planlösning mellan kök och sällskapsrum. Den flexibla planlösningen gör det även möjligt att förvandla den till en trerummare med extra stora sällskapsytor. Du finns också möjlighet att ha en köksö.
Två av sovrummen, ett rymligt badrum med tvättfaciliteter och gäst-wc nås via hallen. Det tredje sovrummet som kan integreras ligger i anslutning till sällskapsrummet. Jämte finns en stor klädkammare. Balkongen erbjuder många soltimmar under dagen och har en idealisk placering invid sällskapsavdelningen.
Vilken känsla och stil vill du att ditt hem ska förmedla? Du får helt kostnadsfritt - välja bland tre olika stilar som Nordrs inredningsarkitekter har skapat. Samtliga med olika karaktär genom skiftande färger och material men med den skandinaviska tidlösheten som grund. Gå in på projektsidan för att bekanta dig lite mer med dem.
Fin fyrarummare på gavel med härlig balkong i söder, fönster i tre väderstreck och öppen planlösning mellan kök och sällskapsrum. Den flexibla planlösningen gör det även möjligt att förvandla den till en trerummare med extra stora sällskapsytor. Du finns också möjlighet att ha en köksö.
Två av sovrummen, ett rymligt badrum med tvättfaciliteter och gäst-wc nås via hallen. Det tredje sovrummet som kan integreras ligger i anslutning till sällskapsrummet. Jämte finns en stor klädkammare. Balkongen erbjuder många soltimmar under dagen och har en idealisk placering invid sällskapsavdelningen.
Vilken känsla och stil vill du att ditt hem ska förmedla? Du får helt kostnadsfritt - välja bland tre olika stilar som Nordrs inredningsarkitekter har skapat. Samtliga med olika karaktär genom skiftande färger och material men med den skandinaviska tidlösheten som grund. Gå in på projektsidan för att bekanta dig lite mer med dem.
Sunnan, Nordan eller Mistral?
Du väljer stil och tillhörande Egna val.
Dokument
Visning och kontakt
Marie Wilhelmsson
Mäklare, Bjurfors
Eric Swahn
Mäklare, Bjurfors
