4-1003
Status
Såld
Pris
Avgift
6 314
Antal rum
4
Boyta
81,5
Våning
0
Boendeform
Bostadsrättslägenhet
Uppskattad driftskostnad
864
Inflytt
4-1003
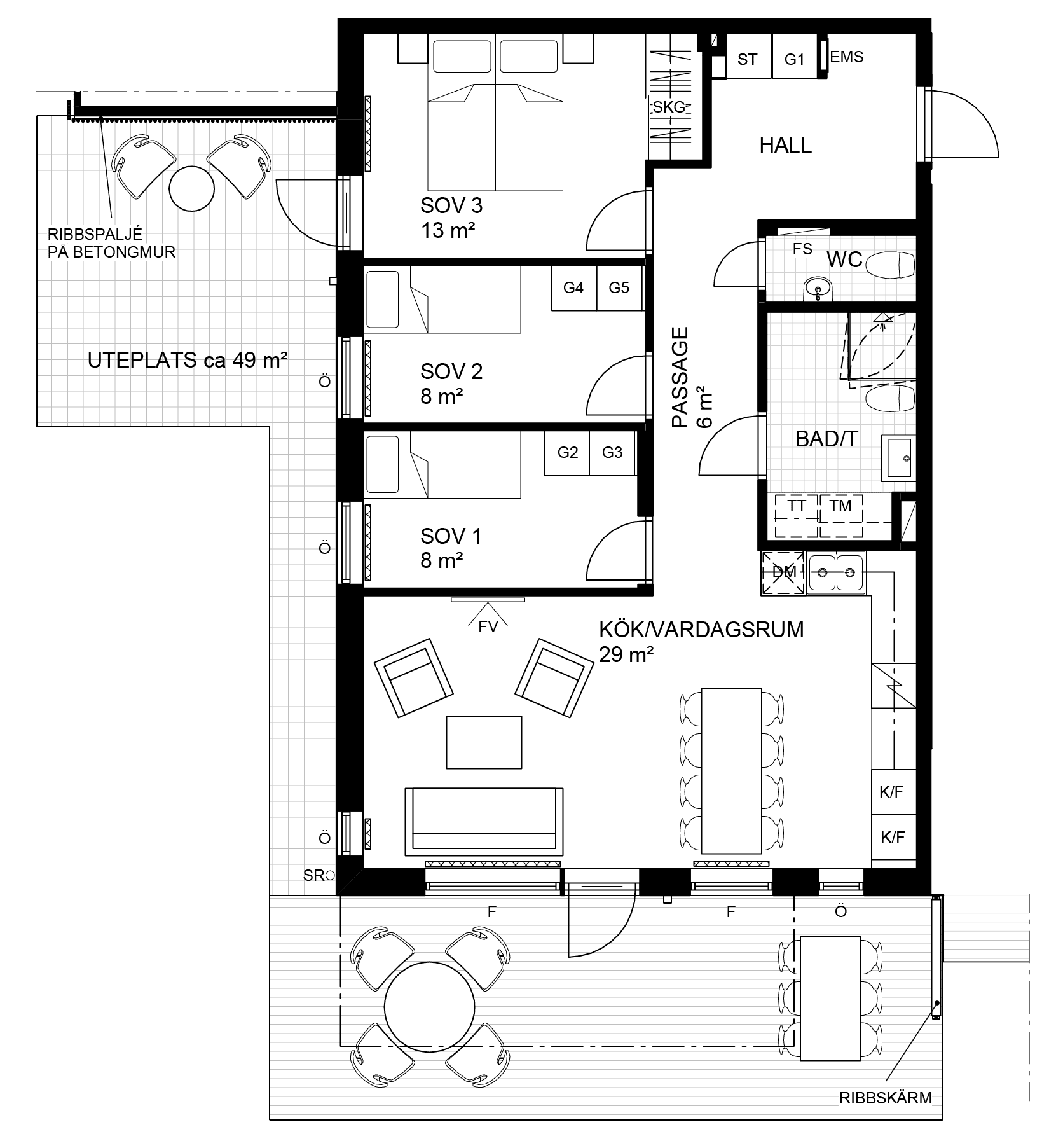
ostadens fina planering ger tre sovrum och ett stort öppet vardagsrum och kök. Dessutom välkomnas du av en rymlig hall och har både ett stort badrum och en praktisk gäst-wc. Vinkelköket är genomtänkt med bra arbetsytor. Stort altandäck i trä och sten som går runt gaveln och till vilken du har två utgångar. Villakänsla, men av det mer lättskötta slaget! Förråd finns praktiskt nog på entréplan.
Fyran kan du som eget val anpassa sovrummen för att passa just dig bättre. Du kan ta bort ett sovrum för att få ett ännu rymligare kök/vardagsrum och då kan du även välja till en köksö. Du kan även göra om ett av sovrummen till en walk-in-closet som samtidigt kan fungera som kontor.
Fyran kan du som eget val anpassa sovrummen för att passa just dig bättre. Du kan ta bort ett sovrum för att få ett ännu rymligare kök/vardagsrum och då kan du även välja till en köksö. Du kan även göra om ett av sovrummen till en walk-in-closet som samtidigt kan fungera som kontor.
Äng, Fjäll eller Fjord?
Du väljer stil och tillhörande Egna val.
