Ockra - Det gula kvarteret
I kvarteret Ockra kommer det att finnas en variation av hem på mellan 1 till 6 rum och kök. Här hittar du bland annat många genomgående bostäder med dubbla balkonger. Mellan husen kommer det att finnas en gård med fokus på lek, och i botten av lamellhuset en förskola. I denna etapp kommer vårt nya inredningskoncept att finnas med stilarna Sunnan, Mistral och Nordan. Läs mer om dem längre ner på sidan.
Lansering
November 2024
Säljstart
November 2024
Visningslägenhet
Februari 2025
Byggstart
Sommaren 2025
Inredningsval
Hösten 2025
Tillträde
Från 2027
Ockra – den pampiga finalen
Den tredje och sista etappen av Haga Palett – kvarteret Ockra – liknar syskonen med sina rena former, putsade fasader och maffiga, välvda portiker mot Solnavägen. Men kvarteret skiljer sig från de andra till färgen: Efter det röda och det gröna är det nu dags för det gula kvarteret att ta sin plats vid ingången till Hagastaden.
Till kvarteret Haga Palett Ockra hör ett lamellhus som stoltserar vid Solnavägen samt ett punkthus som ligger mot en lugn lokalgata. Tack vare lamellhusets rejäla takhöjd i gatuplan bjuds man här på en utsikt över pittoreska Solna Kyrkby och den väldiga Hagaparkens gröna tak redan från det första bostadsplanet.
Haga Palett kommer redan vid inflytt att ha flera verksamheter, bland annat en livs i det första kvarteret. I Ockra öppnar förskolan upp där kvarterets innergård är dedikerad till förskolan och perfekt för leksugna barn – och den får självklart användas av de boende utanför förskoletiderna. I huset finns dessutom gott om plats för cykel- och bilparkering. Föredrar du att ta dig runt till fots är Vasastans gatuliv bara en kort promenad bort.
Bostäder med medvetna val
I Haga Palett Ockra hittar du yteffektiva ettor, generösa sexor och allt däremellan. Med gedigna materialval och smarta tillval är lägenheterna i Haga Palett Ockra några av Solnas allra bästa.
En genomgående tanke för planlösningarna har varit att skapa ett tydligt samspel mellan vardagsrum och kök samt att göra plats för generösa badrum som bland annat erbjuder både tvätt- och torkmöjligheter. De flesta av de större lägenheterna har även en extra WC/dusch. De mindre lägenheterna är utformade för att få plats med en större säng, för att maximera yteffektiviteten för ett tvåpersonershushåll.
Kvalitet och hållbarhet är ledord i planeringen av Haga Palett Ockra och vi har lagt stort värde i att arbeta med gedigna material, inte minst när det kommer till lägenheternas inredning. Precis som vanligt kan du dessutom anpassa ditt nya hem genom att välja mellan Nordrs tre olika inredningsstilar Nordan, Sunnan och Mistral. Läs mer och titta i den digitala visningsbostaden här >>
Sunnan, Nordan eller Mistral - välj mellan tre unika stilar
När du köper bostad i det gula kvarteret får du kostnadsfritt välja mellan våra tre utvalda stilar - Sunnan, Nordan och Mistral. Här har den nordiska miljön stått för inspirationen och samtliga stilar är framtagna för att hålla sig aktuella både i nutid och framtid.
Dubbla takterrasser i söderläge
Alla lägenheter i Haga Palett Ockra har minst en balkong eller uteplats – men varför nöja sig med det? Som boende här kan du också spendera morgon, dag och kväll på någon av husens två stora takterrasser.
Terrasserna ligger högst upp i husen och öppnar upp mot tre väderstreck för att säkra en storslagen utsikt och ett högt antal soltimmar. De är generösa till storleken – runt hundra respektive femtio kvadratmeter – och har både en öppen och en inglasad del, så att du kan njuta av den vidsträckta utsikten även under höst och vår. Så passa på att ta upp frukosten till taket eller avsluta dagen med en god bok och ännu bättre vy!
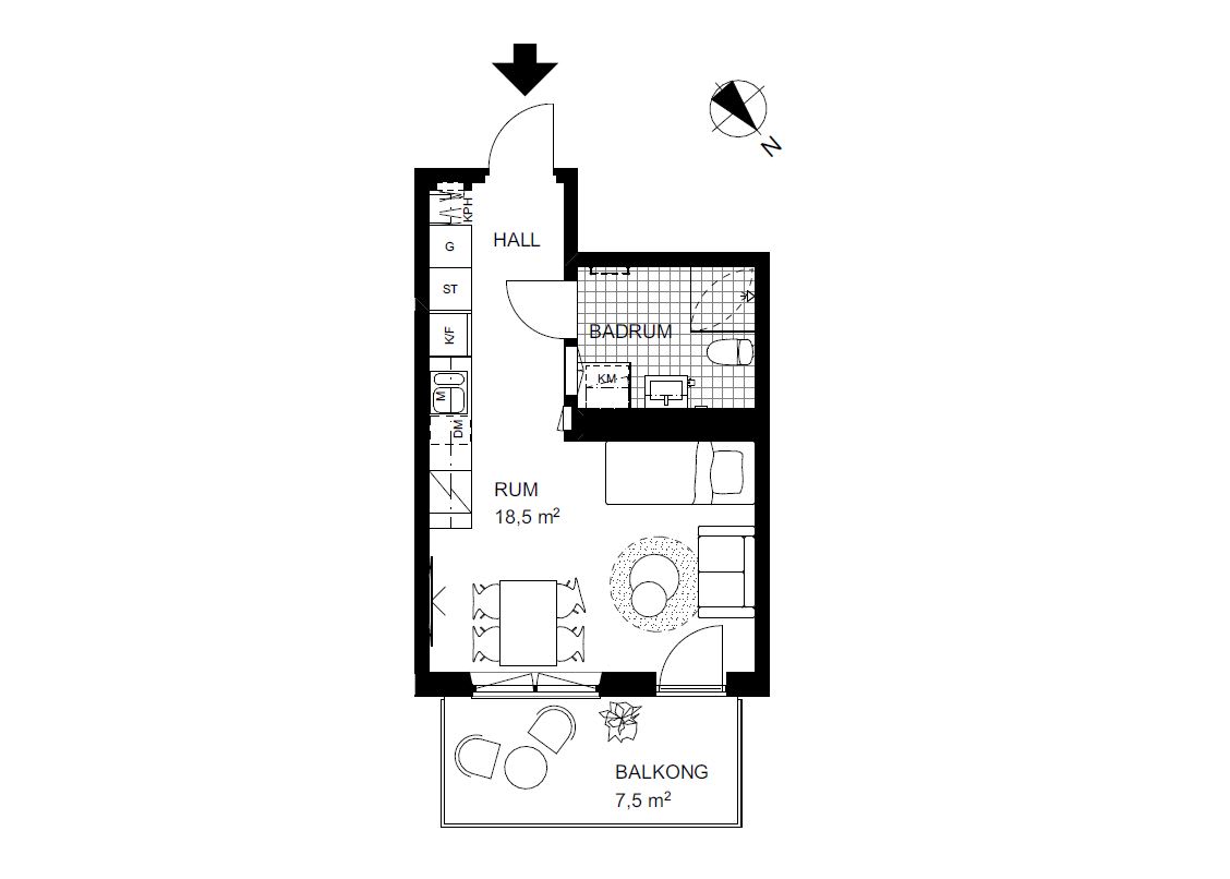
Kompromissfria ettor och tvåor
När man bor mindre spelar varje kvadratmeter roll – därför är ettorna och tvåorna i Haga Palett Ockra väldigt välplanerade. Alla har en egen uteplats eller en rejäl balkong, vilket ger dig ett extra rum under stora delar av året. Badrummen är rymliga och utrustade med kombimaskin för tvätt och tork. Väljer du någon av lägenheterna mot Solnavägen får du dessutom extra stora fönsterpartier för att optimera det maffiga ljusinsläppet och känslan av rymd.
Ockras ettor ligger på 27-28 kvadrat och tvåorna finns i flera varianter, från en riktigt smart minitvåa på 33 kvadrat till en luftig 55-kvadratare.
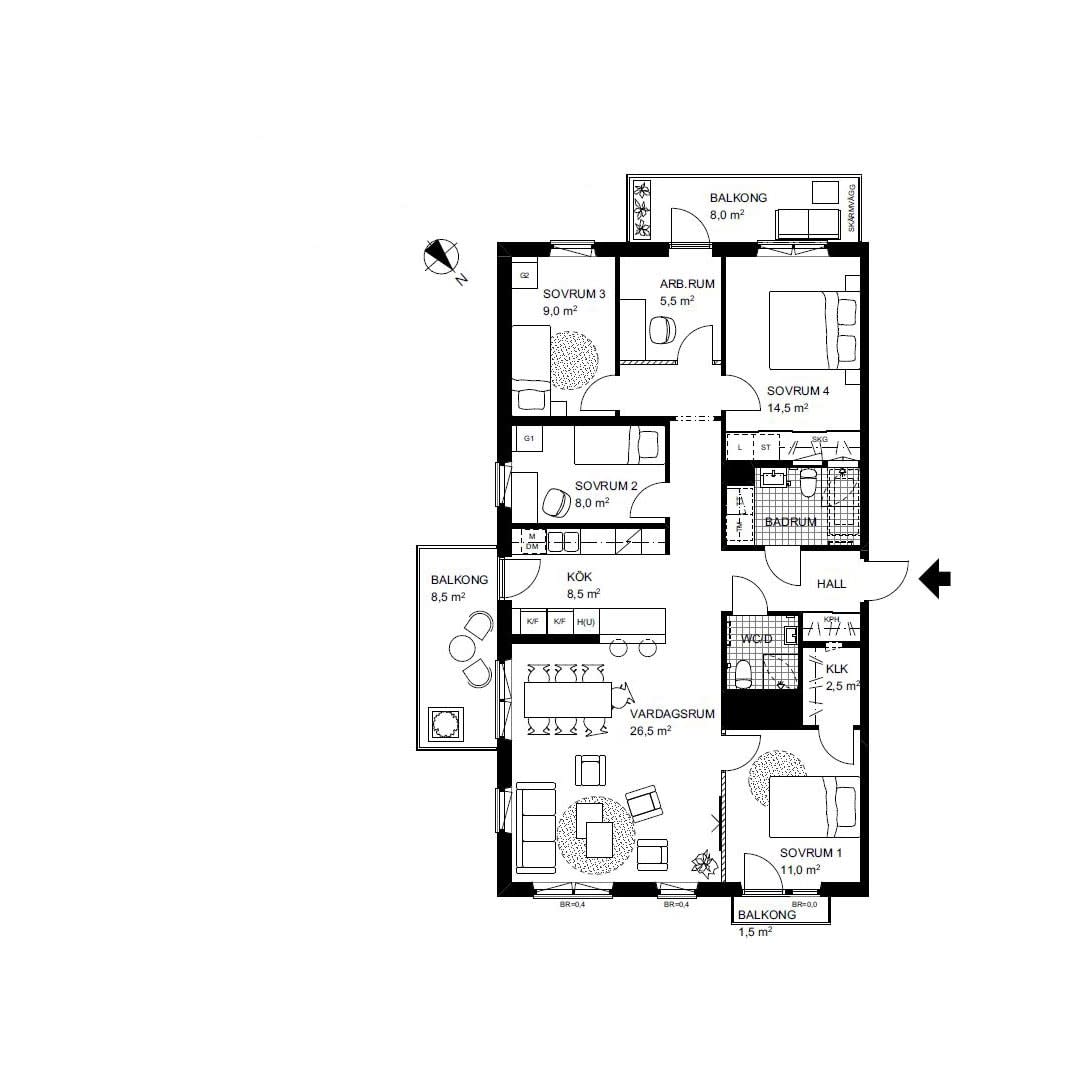
Treor och fyror med guldkant
Ockras tre- och fyrrummare finns i många utföranden och sträcker sig från 62 till 97 kvadratmeter. Här finns något för alla smaker. Njuter du av frukost på sängen kanske du hör hemma i trean som har ett 15 kvadratmeter stort sovrum med balkong mot gården? Är det viktigaste att ha det öppet och luftigt så har vi en fyra med fönster i tre väderstreck och dubbla balkonger. Många av treorna och fyrorna har dessutom frånvalsväggar som gör lägenheterna än mer flexibla.
Gott om förvaring och rymliga badrum med tvättmöjligheter är gemensamt för alla treor och fyror i Ockra – och fyrorna har dubbla badrum/WC med dusch för att ytterligare förenkla vardagslogistiken.
Maffiga femmor och sexor
När det kommer till Ockras största lägenheter har vi verkligen tagit ut svängarna och maxat ljusinsläppet. Femmorna på 105 kvadrat ligger i gavelläge med fönster i tre väderstreck och har två balkonger – den största på 10 kvm i sydvästläge mot gården. Här finns två stora sovrum och två lite mindre som även fungerar bra som arbetsrum.
På husets motsatta gavel hittar vi sexorna på 115 kvadrat – och de har balkonger i hela tre väderstreck. Här finns även möjlighet att välja bort en vägg för att slå ihop två mindre rum till ett större.
Samtliga femmor och sexor i Ockra har dubbla badrum/WC dusch varav ett med tvättmaskin och torktumlare.
SÅHÄR GÅR ETT KÖP TILL I HAGA PALETT OCKRA
snabbguide
1
Hitta din bostad och teckna förhandsavtal
- Ta del av information om bostäderna och bostadsrättsföreningen
- Kontakta banken och ansök om lånelöfte
- Teckna förhandsavtal
- Betala förskott på 100 000 kr
2
Välj inredning
Genom vårt inredningskoncept väljer du mellan stilarna Sunnan, Nordan och Mistral. Du har även möjlighet att anpassa ditt hem efter dina behov genom tillval. Förbered dig genom att titta i vår digitala visningsbostad. Vi bjuder in till inredningsträff och berättar mer när det är dags!
3
Byggplatsvisning
Detta blir första gången du ser ditt nya hem!
4
Teckna upplåtelseavtal
- Upplåtelseavtal tecknas ca 3-6 månader innan inflytt
- Betala handpenning på 10% av köpeskillingen (minus tidigare betalt förskott)
- Senast 4 månader innan inflytt får du ditt definitiva tillträdesdatum
5
Ditt nya hem är färdigt, dags att flytta in!
Vi går tillsammans igenom alla funktioner i din nya bostad. Efter slutbetalning får du dina nycklar och kan äntligen flytta in i din nya bostad!
